Adresa
Ulica V 36, 23231 Petrčane
Mail
lisicasanja10@gmail.com
Nazovite nas
+385 92 198 4378

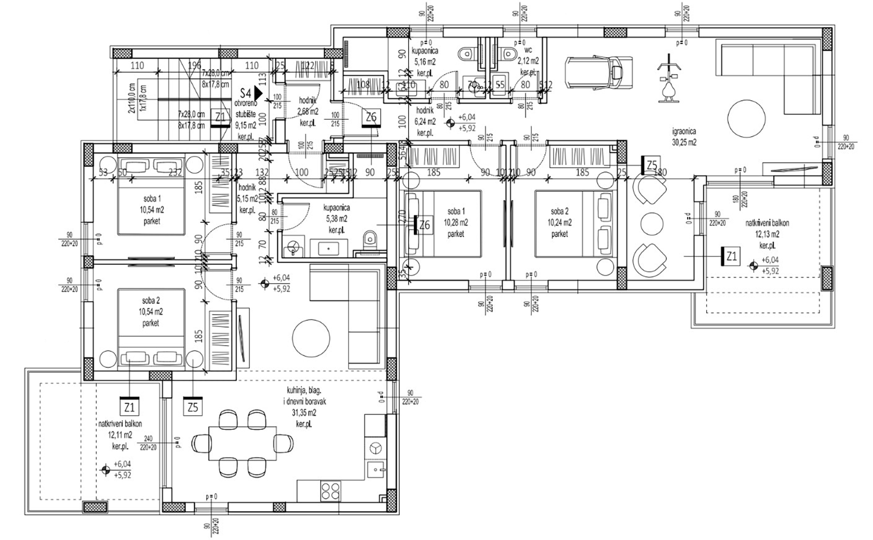
S4 | 2.kat

4
2
1
130 m²
2

Stan S4 nalazi se na 2. katu, a sastoji se od:

  • kuhinje, blagovaonice i dnevnog boravka | 31,35m2
  • igraonica (ili drugi dnevni open space) | 30,25m2
  • spavaće sobe 1 | 10,54 m2
  • spavaće sobe 2 | 10,54 m2
  • spavaće sobe 3 | 10,28 m2
  • spavaće sobe 4 | 10,24 m2
  • kupaonice 1 | 5,38 m2
  • kupaonice 2 | 5,16 m2
  • odvojenog wc-a | 2,12 m2
  • hodnika 1 | 6,24 m2
  • hodnika 2 | 2,68 m2
  • hodnika 3 | 5,15 m2

UKUPNO veličina stana 129,93 m².

Nekretnina ima sljedeće dodatne dijelove i pripatke:
  • natkriveni balkon 1 | 12,11 m²
  • natkriveni balkon 2 | 12,13 m²
  • natkriveno parkirališno mjesto | 13,75 m²
  • nenatkriveno parkirališno mjesto | 13,75 m²
  • krovna terasa | 79,45 m²
Ukupna površina penthouse-a S4 s dodatnim dijelovima i pripadcima iznosi 261,12 m², a ukupna korisna vrijednost površine iznosi 171,55 m².

Ovaj ekskluzivni penthouse prostire se cjelokupnim drugim katom zgrade i pruža vrhunski komfor i prostranost. Smješten na atraktivnoj lokaciji, savršen je za obiteljski život ili investiciju u vrhunsku nekretninu. Stan se sastoji od četiri prostrane spavaće sobe, dvije elegantne kupaonice te dva open-space dnevna boravka povezana s kuhinjom i blagovaonicom, pružajući savršenu ravnotežu privatnosti i zajedničkog prostora. Vizulizacija prikazuje 2 krila, jedno je zamišljeno kao roditeljsko krilo, a drugo kao dječje krilo. Jedna soba u roditeljskom krilu može biti uređena kao kućni ured. Tokom izgradnje objekta, moguće je odvojiti prostor na dva zasebna stana. Svi stanovi bit će uređeni s parketima i keramikom prve klase.

Sve vizualizacije interijera razvijene su isključivo za potrebe predstavljanja mogućnosti opremanja prostora potencijalnim kupcima i ne odnose se na izvedbene projekte uređenja. Za više naših radova posjetite nas na RoomFabrika.