Adresa
Ulica V 36, 23231 Petrčane
Mail
lisicasanja10@gmail.com
Nazovite nas
+385 92 198 4378

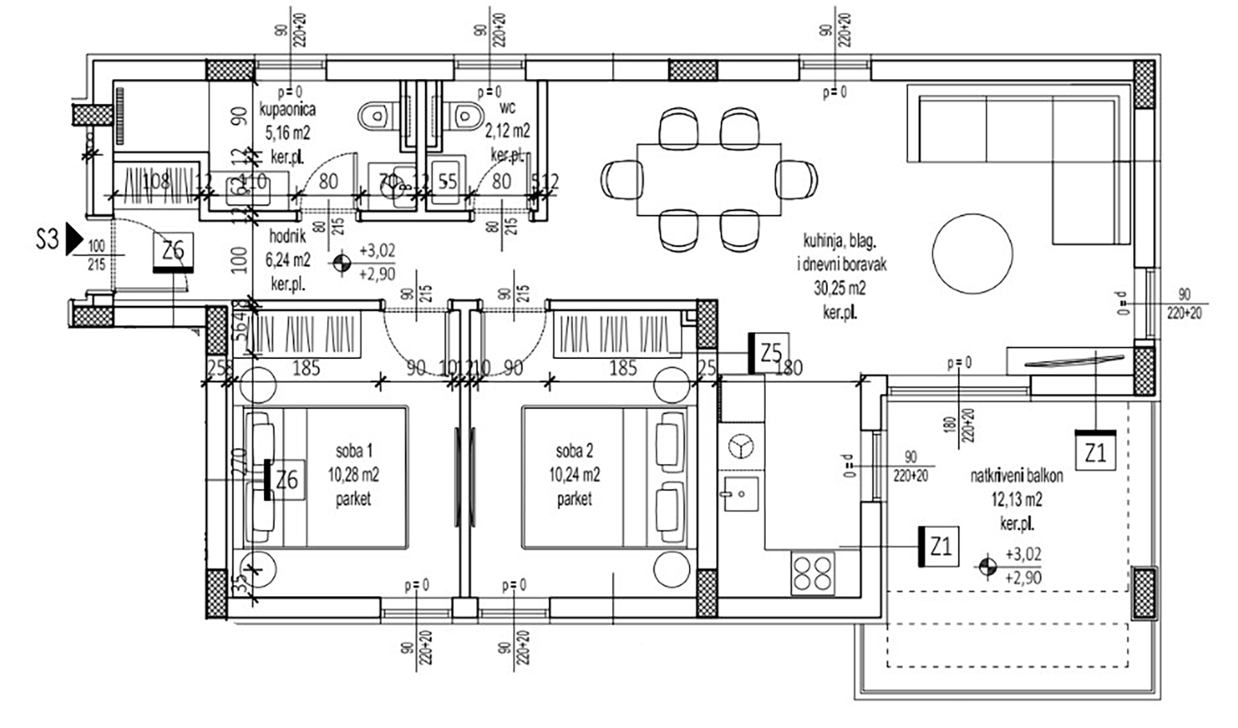
S3 | 1.kat

2
1
1
64 m²
1

Stan S3 nalazi se na 1. katu na jugoistočnom dijelu zgrade, a sastoji se od:

  • kuhinje, blagovaonice i dnevnog boravka | 30,25m2
  • spavaće sobe 1 | 10,28 m2
  • spavaće sobe 2 | 10,24 m2
  • kupaonice | 5,16 m2
  • odvojenog wc-a | 2,12 m2
  • hodnika | 6,24 m2

UKUPNO veličina stana 64,29 m².

Nekretnina ima sljedeće dodatne dijelove i pripatke:
  • natkriveni balkon | 12,13 m²
  • natkriveno parkirališno mjesto | 13,75 m²
  • nenatkriveno parkirališno mjesto | 13,75 m²
Ukupna površina stana S2 s dodatnim dijelovima i pripadcima iznosi 103,92 m², a ukupna korisna vrijednost površine iznosi 79,99 m².

Prostrani dnevni open space boravak povezan s kuhinjom i blagovaonicom stvara moderan i svijetao prostor, savršen za opuštanje i druženje. Velika staklena stijena omogućuje obilje prirodnog svjetla i izlaz na natkriveni balkon. Dvije udobne spavaće sobe imaju dovoljno prostora za bračne krevete, a za maksimalnu iskorištenost prostora savjetuje se ugradnja ormara po mjeri. Prostrani natkriveni balkon pruža savršeno mjesto za uživanje na otvorenom, za jutarnju kavu, obiteljske obroke ili večernje opuštanje, uz zaštitu od sunca i vremenskih uvjeta. Stan osim kupaonice s tušem ima i zasebni toilet. Svi stanovi biti će opremljeni s parketima i keramikom prve klase.

Sve vizualizacije interijera razvijene su isključivo za potrebe predstavljanja mogućnosti opremanja prostora potencijalnim kupcima i ne odnose se na izvedbene projekte uređenja. Za više naših radova posjetite nas na RoomFabrika.