Adresa
Ulica V 36, 23231 Petrčane
Mail
lisicasanja10@gmail.com
Nazovite nas
+385 92 198 4378

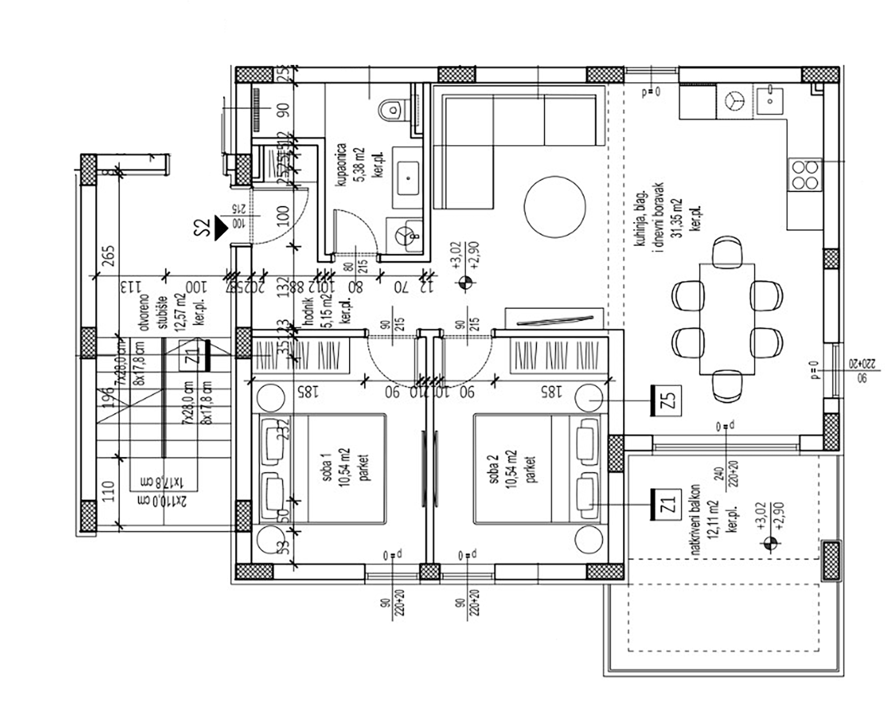
S2 | 1.kat

2
1
63 m²
1

Stan S2 nalazi se na 1. katu na sjeverozapadnom dijelu zgrade, a sastoji se od :

  • kuhinje, blagovaonice i dnevnog boravka | 31,35m2
  • spavaće sobe 1 | 10,54 m2
  • spavaće sobe 2 | 10,54 m2
  • kupaonice | 5,38 m2
  • hodnika | 5,15 m2

UKUPNO veličina stana 62,96 m².

Nekretnina ima sljedeće dodatne dijelove i pripatke:
  • natkriveni balkon | 12,11 m²
  • natkriveno parkirališno mjesto | 13,75 m²
  • nenatkriveno parkirališno mjesto | 13,75 m²
  • krovna terasa | 71,59 m²
Ukupna površina stana S2 s dodatnim dijelovima i pripadcima iznosi 174,16 m², a ukupna korisna vrijednost površine iznosi 96,55 m².

Prostrani dnevni open space boravak povezan s kuhinjom i blagovaonicom stvara moderan i svijetao prostor, savršen za opuštanje i druženje. Velika staklena stijena omogućuje obilje prirodnog svjetla i izlaz na natkriveni balkon. Dvije udobne spavaće sobe imaju dovoljno prostora za bračne krevete, a za maksimalnu iskorištenost prostora savjetuje se ugradnja garderobnih ormara po mjeri. Prostrana natkrivena terasa pruža savršeno mjesto za uživanje na otvorenom, za jutarnju kavu, obiteljske obroke ili večernje opuštanje, uz zaštitu od sunca i vremenskih uvjeta. Svi stanovi bit će uređeni s parketima i keramikom prve klase.

Sve vizualizacije interijera razvijene su isključivo za potrebe predstavljanja mogućnosti opremanja prostora potencijalnim kupcima i ne odnose se na izvedbene projekte uređenja. Za više naših radova posjetite nas na RoomFabrika.